Prodej cihlového bytu 3+1 s balkonem a sklep Brno, Jugoslávská CP 98 m2
JEDINEČNÁ NABÍDKA.
EXKLUZIVNĚ nabízíme prodej velmi prostorného, udržovaného, cihlového bytu ve standardu o dispozici 3+1 v osobním vlastnictví, nacházející se v Brně, v městské části Černá Pole na ulici Jugoslávská. Byt se nachází v 1. patře z 5. patrového bytového domu bez výtahu. Celková plocha bytu je 98 m2 + balkon 6 m2 + sklep 5 m2. Tepelnou pohodu v bytě zajišťuje vlastní plynový kotel s ohřevem teplé vody. Každý ocení i samostatné vstupy do všech pokojů. Z důvodu nedodání PENB uvádíme energetickou náročnost budovy skupinu G.
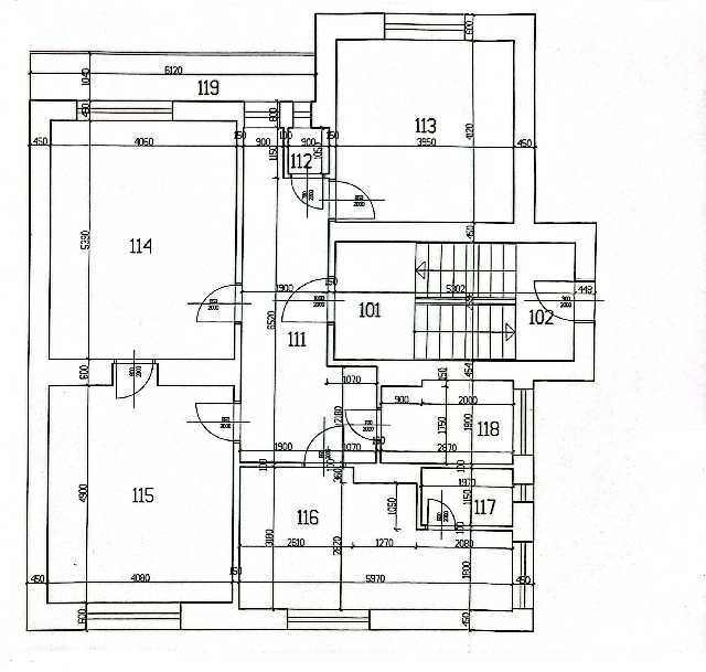
Dispozice
Prostorná předsíň 16 m2, kuchyň s možností posezení 5 m2, spížka 2 m2, koupelna 5 m2 s umyvadlem - vanou, přípojkou na pračku a plynovým kotlem, samostatné WC 1 m2, pokoj 16 m2 pokoj 16 m2, pokoj se vstupem na balkon 20 m2, balkon 6 m2, sklep 5 m2.
Velkou výhodou je, že byt je v původním, udržovaném stavu a noví majitelé si byt mohou předělat dle svých představ.
Před domem je vybudované parkoviště se 3 místy, kde je možné bezplatně zaparkovat. Parkoviště patří k bytovému domu.
Bytový dům se nachází v těsné blízkosti veřejného parku Schreberovy zahrádky.
https://cs.wikipedia.org/wiki/Schreberovy_zahr%C3%A1dky
Vybavenost obce: veškerá.
Dostupnost: tramvaj č. 3, 5, 7, 9 autobus č. N92. N93.
Byt je ihned VOLNÝ.
Tuto zakázku vyřizuje Vítězslav Syrový 736 646 769.



















